宇都宮市御幸本町の新築一戸建

2,890万円

栃木県宇都宮市御幸本町

宇都宮芳賀ライト線「陽東3丁目」駅徒歩37分

宇都宮芳賀ライト線「宇都宮大学陽東キャンパス」駅徒歩40分

宇都宮芳賀ライト線「峰」駅徒歩40分

価格
2,890万円
間取り/建物面積
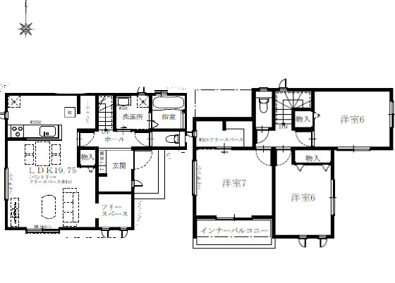
3LDK/98.12㎡
所在地
栃木県宇都宮市御幸本町
築年
2025年9月(新築)
駐車
交通

宇都宮芳賀ライト線陽東3丁目」駅 徒歩37分

宇都宮芳賀ライト線宇都宮大学陽東キャンパス」駅 徒歩40分

宇都宮芳賀ライト線」駅 徒歩40分

宇都宮市御幸本町の新築一戸建の基本情報

物件名
宇都宮市御幸本町の新築一戸建
価格
2,890万円
建物面積
98.12㎡
土地面積
36.38坪(120.28㎡)
築年月
2025年9月(新築)
総戸数
2戸
所在地
栃木県宇都宮市御幸本町
交通

宇都宮芳賀ライト線陽東3丁目」駅 徒歩37分

宇都宮芳賀ライト線宇都宮大学陽東キャンパス」駅 徒歩40分

宇都宮芳賀ライト線」駅 徒歩40分

宇都宮市御幸本町の新築一戸建の詳細情報

設備条件
  • 閑静な住宅地
  • 建設住宅性能評価書付
  • 駐車2台可
  • 耐震構造
設備(その他)
    公営水道、公共下水、都市ガス
駐車場/月額
有/-
土地権利
所有権
国土法届出
不要
用途地域
第一種住居
取引態様
仲介
引渡し
即時

宇都宮市御幸本町の新築一戸建で募集中の物件

  1. 2号棟

    29.68坪 (98.12㎡)

    2,890万円(97.37万円/坪)

近隣の物件

  1. 宇都宮市上野町

    4LDK (112.62㎡)

    1,999万円

宇都宮市御幸本町の新築一戸建

お気軽にお問い合わせください

無料お問い合わせ

株式会社Sol Home 宇都宮支店

028-611-1084

9:00~18:00

(休:不定休)